| realizace Ing. Arch. Jan Zezůlka - byty - PRAHA ANDĚL 2004
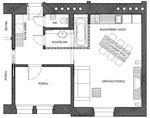
| Rekonstrukce bytu ve starém činžovním domě, kdy bylo WC na společné chodbě. Z původní koupelny se oddělila toaleta a nově se vana umístila za sklobetonovou příčku v rámci prostoru obývacího pokoje s kuchyní.
| zpět
© COPYRIGHT 2009 AtelierX Česká republika. Všechna práva vyhrazena.
Webdesign Whitelabel | Links